Eladó Családi ház, Őrbottyán

#213306909

CSAK NÁLUNK  
Eladó Családi ház

98.9 millió Ft

Őrbottyán Őrszentmiklós
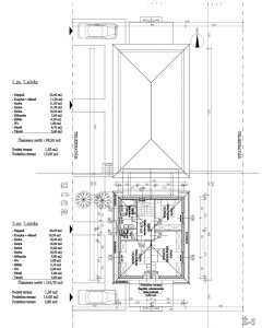
Alapterület:
125 m2
Szobák száma:
3 + 2
Állapot:
Új építésű
Építési mód:
Tégla
Zöldövezeti

Kérjen személyes bemutatást!
Adja meg adatait, és hogy mikor érne rá!

Az Adatkezelési tájékoztatót elolvastam és elfogadom.

Megfelelő időpontok

Hétköznap délelőtt
Hétköznap délután
Hétköznap este
Hétvégén délelőtt
Hétvégén délután
Hétvégén este
Kérés elküldése
500 m2
Hőszigetelt
Hőszivattyú
2

Őrbottyánban, horgásztó közelében, új építésű tégla családi ház leköthető 2026-os átadással

Őrbottyán belterületi részén újépítésű ház leköthető!

Horgásztó közelében nappali + 3 hálószobás téglaházak eladók 500 nm-es telekkel!

Főbb jellemzők:

- csendes, nyugodt részen, sok zölddel mindenfelé

- 500 nm-es saját, leválasztott telekkel

- a teljes telek 1000 nm, melyre 2 ház épül, az egyik 2 szintes lesz, a másik egy szintes. Jelenleg mindkét fele eladó! A 2 épület között a tárolók helyezkednek el.

- a telek 19 méter széles, 56 méter utcafrontos, remek telek! 

- gyönyörű tujasor takar az egyik szomszéd felé és sok fa található a telekhatárokon

- jogilag 2 db társasházi albetét lesz

- az építkezés ősszel indul, kb. 6-8 hónap alatt elkészül, a tervek engedélyeztetése miatt és a használatbavételi miatt 8-10 hónapra tolódhat ki

Az egyik ház 90 nm-es + teraszok, egyszintes, nappali + 3 hálós, a másik ház 2 szinten 114.7 nm + teraszok, nappali + 3 hálós.

Ez a hirdetés az 2.számú lakásról szól, mely kétszintes!

Műszaki jellemzők:

- Porotherm okos tégla

- hőszivattyús fűtés

- cserépfedés

- klíma kiállás

- autóbeállási lehetőség a kertben

- külön tároló

- murvás földút van jelenleg a főbb úttól nem messze

 

Előny: 

- A természetben vásárolhat egy újépítésú házat, mely nem külterületi, nem zártkerti, hanem belterületi ingatlan, így értéke is magasabb, illetve bármely bank hitelezi!

 

Díjtalan, banksemleges hitelügyintézésben segítünk!

Kérdése van?
Adja meg adatait és felhívjuk!

Az Adatkezelési tájékoztatót elolvastam és elfogadom.
Üzenet küldése